Overview
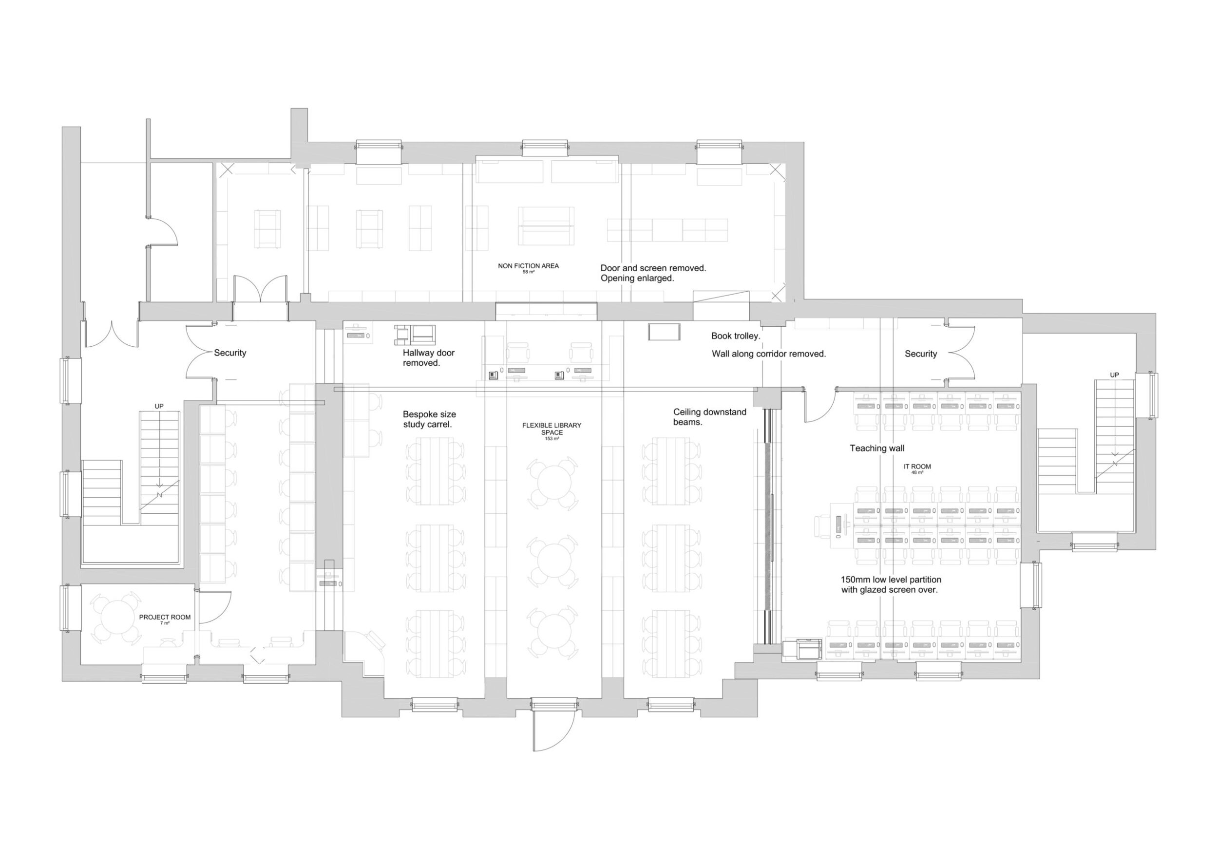
Barker was tasked with procuring and managing the internal remodelling of an existing listed building at the Henrietta Barnett School to provide a new state of the art ICT and library area.
The Challenges
A key challenge within the project was to achieve an innovative design that met the client’s needs within a listed Lutyens building. This challenge increased by a modest project budget and the necessity of completing the construction works within a live educational environment.
The Outcome
To negate the challenges posed, heavy construction works were executed during the summer holidays. We also undertook off-site fabrication of bespoke furniture. The design strategy placed a high emphasis on raising the lighting and acoustic performance of the new spaces to achieve a stimulating learning environment for the ICT and library provisions to meet the client’s requirements.
The construction works were delivered on time and under budget, allowing additional investment in the fit-out elements.
The construction works were delivered on time and under budget allowing additional investment in the fit-out elements.


“We are absolutely thrilled with our wonderful new facility. You used our limited funds to excellent advantage, and we have ended up with a library that is fully functional, spacious, practical and inspirational. What more could we ask!
The fact that you took ownership of the project put so much time and effort into it and made a personal commitment to making all the components come together so successfully, ensured that we felt safe under your leadership.
Thank you so much for working so hard on our behalf and for ensuring that the project ran smoothly to time and within budget.”
Our experience and vision have shaped hundreds of projects across sectors, from energy and funding to architecture and design, helping bring ideas to life.