Contact us
Back to projects

Kingsley Special Academy – Replacement 2 Classroom Teaching Block

  • Client: Kingsley Learning Foundation
  • Location: Kettering
  • Sector: Education
  • Services: Architecture & Design, Cost Management, Mechanical & Electrical Engineering, Contract Management, Funding/Bid Writing, Structural & Civil Engineering

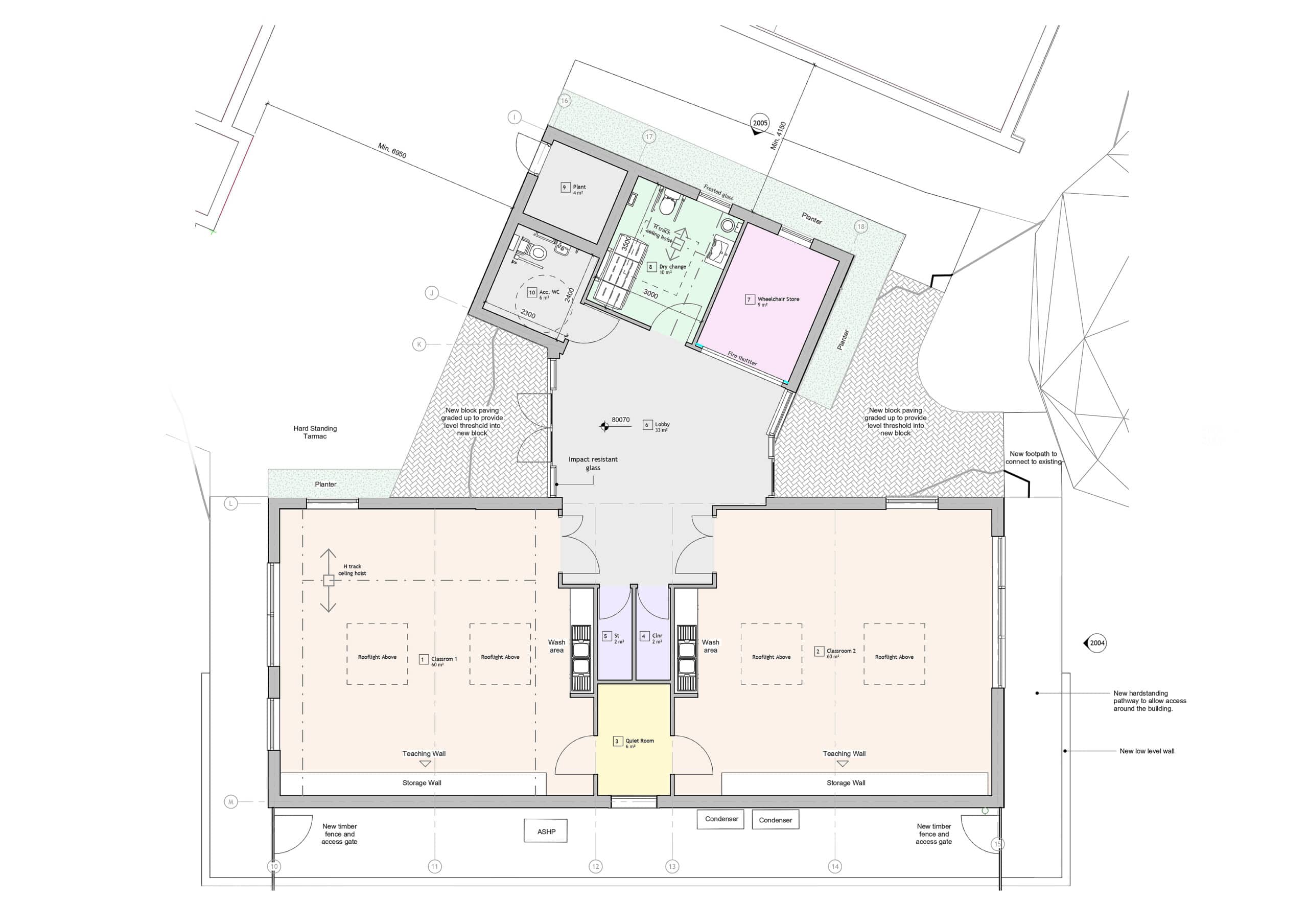
OVERVIEW

Kingsley Special Academy is an innovative SEN primary school located within a residential area of Kettering (Northants). The school caters to pupils aged 4-11 years with a diverse range of physical and cognitive special educational needs. The proposed scheme was to replace an existing dilapidated modular teaching block with a bespoke build suitable for the specific SEN provision.

THE BRIEF

The design proposals were developed through an initial feasibility study that allowed the school to consider several locations across the site and select the most appropriate in terms of development density, design, access and massing. The outcome of this study was used to form the baseline design for preparation and submission of a full Planning Application.

THE CHALLENGE

Understanding the unique needs and requirements of the pupils and staff was crucial in the design process. Initial site visits to Kingsley Special Academy and its sister school Red Kite Special Academy (constructed 2018), provided an opportunity for the design team to engage with the client and wider stakeholders. Through these discussions, a high-quality and detailed brief for the proposed building was developed, ensuring that pupils’ needs were carefully considered.

THE OUTCOME

The planning application achieved a positive outcome with the scheme being granted permission. The school, in collaboration with Barker’s project development team, are now in the construction phase with the project due for completion in early February 2025.

Got a project in mind?
Let’s bring that vision to life.

Our experience and vision have shaped hundreds of projects across sectors, from energy and funding to architecture and design, helping bring ideas to life.

The team at Barkers discuss a Building Construction Project around a table at their office in Braintree, Essex.
See
the project